Casa I-Home 136

El modelo I-Home-136 es una casa de diseño impresionante, con una cubierta plana y ubicada en una única planta, lo que la hace ideal para ser adosada a otra casa I-Home.

Gracias a su diseño cerrado en uno de los laterales, se adapta perfectamente al adosamiento, aunque también puede funcionar como una casa independiente con total comodidad.

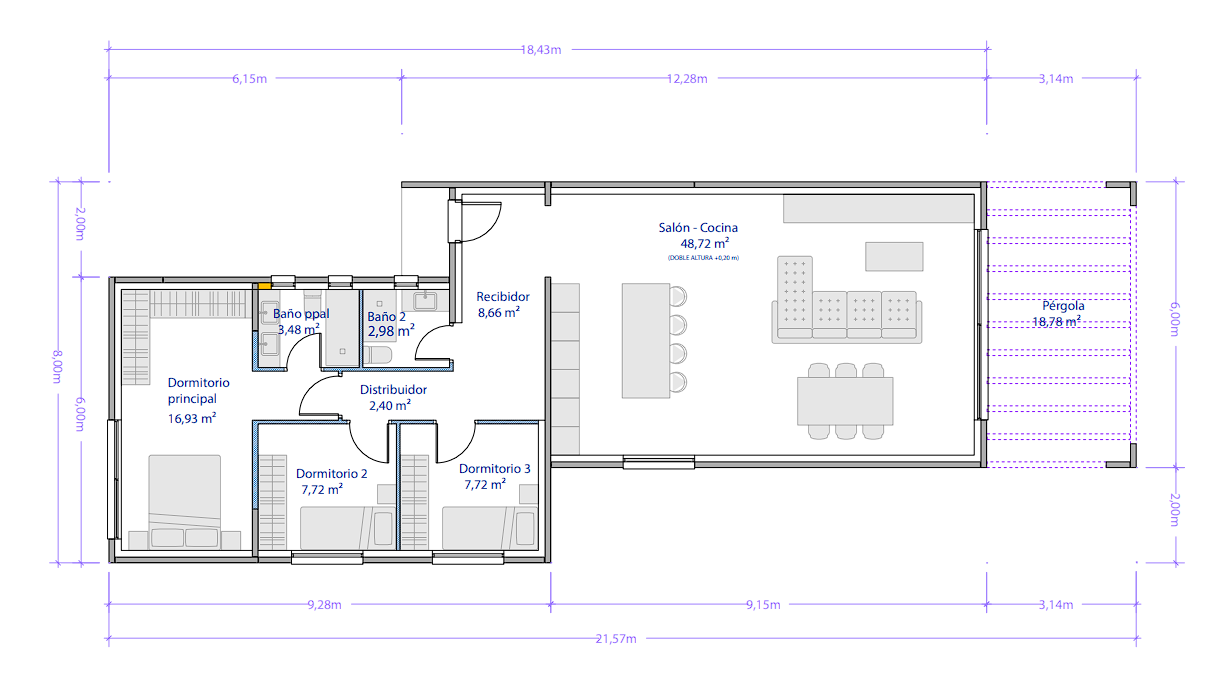
Con una superficie construida de 117m2 y una hermosa pérgola exterior de 18m2, al igual que todas las casas de su gama, esta vivienda destaca por una distribución sencilla y altamente eficiente para aprovechar al máximo los espacios. El protagonista de la casa es el espacioso salón-cocina de 48,72m2, con doble altura, que se convierte en el corazón del hogar.

Está conectado a un amplio distribuidor que separa las áreas de día y de noche. La zona de dormitorios es perfecta para familias de tamaño mediano, con 3 dormitorios en total. Uno de ellos funciona como una lujosa suite principal, con vestidor y baño privado, y también hay otro baño general para el resto de la casa.

Con medidas y distribución diseñadas para crear una casa perfecta, esta vivienda ofrece una excelente relación entre metros cuadrados y precios, siempre garantizando la calidad que caracteriza a Modular Home.

Calidades que se adaptan a ti

Esta vivienda está disponible en calidades Essential o Green elige la mejor opción dependiendo de tus necesidades.

Casa-IHome136-LateralFrontalCasa-IHome136-LateralTraseralCasa-IHome136-TraserAereaCasa-IHome136-Lateral

Reserva ahora tu i-Home 136

Si la Casa I-Home 136 se adapta a tus necesidades, puedes reservarla. Sólo tienes que elegir tu zona y los acabados que necesitas y con un sólo click, tienes la posibilidad de formar parte de la comunidad Modular Home.

Si necesitas un presupuesto personalizado, conecta con nosotros y un técnico te ayudará en todo el proceso para realizar tu proyecto.

*Los precios pueden variar dependiendo del lugar de ubicación y de la topografía del terreno y el firme existente

Datos técnicos

Superficie planta baja:
116,80m2

Pérgola:
18,78m2

Doble altura:
9,74m2

Salón-comedor-cocina:
48,72m2

Recibidor:
8,66m2

Dormitorio principal:
16,93m2

Baño dormitorio principal:
3,48m2

Dormitorio 2-3:
7,72m2

Baño 2:
2,98m2

Planos de planta

Échale un ojo a nuestros diferentes modelos

Casa-Rothko

Casa Rothko

Rothko en 2 modelos entre los que puedes elegir en sus versiones de 149 y 163m2 con 3 y 4 dormitorios y porche exterior.

Casa-ihome

Casa I-Home

Viviendas desde los 103m2 hasta los 305m2 con pérgola exterior con posibilidad de adosarse y parearse.

Casa Gabarrón

Comodidad y confort a tu servicio. Viviendas desde los 130m2 hasta los 208m2.

Casa-Picasso

Casa Picasso

Picasso en 3 modelos diferentes desde los 235m2 hasta los 489m2. Salón a doble altura, 4 dormitorios y 3 baños.

casa-Cava

Casa Cava

Casa Cava de 278m2 con una única planta. Vivienda cómoda y práctica, perfecta para parcelas de tamaño medio.

Casa-MH

Casa MH

Casas prefabricadas rústicas tradicionales y de diseño. Viviendas desde los 80m2 hasta los 120m2.

Casa-VilaltaX

Casa Vilalta X

La Casa Vilalta X tiene un gran diseño, sin pasillos, distribuida en dos plantas donde se produce la funcionalidad perfecta para cualquier persona.

casa-dalí

Casa Dalí

Descubre la Casa Dalí, una impresionante residencia de 215m2 con un elegante porche que te dará la bienvenida