El modelo I-Home 305 encarna el sueño de cualquier familia en busca de una casa en dos plantas con características excepcionales.
Con una superficie construida de 205m2 para la vivienda, una pérgola exterior de 18m2 y unas impresionantes terrazas que suman un total de 73,68m2, esta casa enamorará tanto a tu familia como a tus amigos.
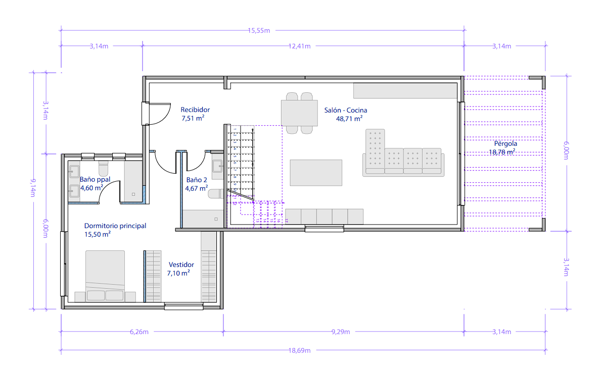
Su distribución ha sido cuidadosamente diseñada para brindar la máxima comodidad, concentrando la mayoría de los metros cuadrados en la planta baja. Aquí, el salón-comedor-cocina de 48,69m2, unido a la pérgola exterior, se convierte en el epicentro de la vida diaria. El ala de descanso y noche se encuentra en la parte delantera de la vivienda, con un dormitorio principal en suite y dos dormitorios para los niños, acompañados de otro baño compartido, ubicado cerca para brindar una atención cómoda a los más pequeños.
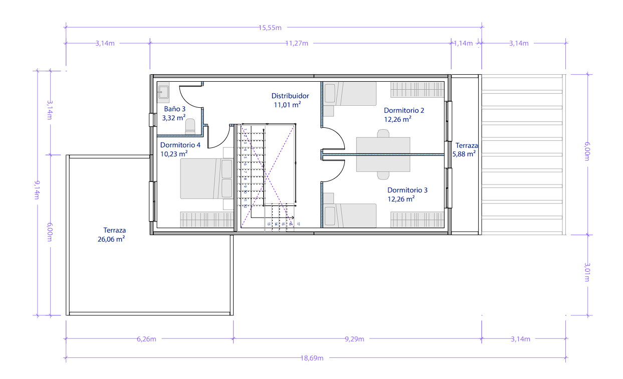
En la planta superior, se encuentra otro dormitorio en suite, perfecto para invitados o para un miembro adicional de la familia que busca mayor privacidad en el hogar. También hay zonas de estudio y teletrabajo, conectadas a sus respectivas terrazas. ¿Qué más se puede pedir?
El modelo I-Home 305 es el hogar de ensueño que reúne diseño, funcionalidad y espacio para crear momentos inolvidables con tus seres queridos.
Esta vivienda está disponible en calidades Essential o Green elige la mejor opción dependiendo de tus necesidades.
Si la Casa I-Home 224 se adapta a tus necesidades, puedes reservarla. Sólo tienes que elegir tu zona y los acabados que necesitas y con un sólo click, tienes la posibilidad de formar parte de la comunidad Modular Home.
Si necesitas un presupuesto personalizado, conecta con nosotros y un técnico te ayudará en todo el proceso para realizar tu proyecto.
*Los precios pueden variar dependiendo del lugar de ubicación y de la topografía del terreno y el firme existente
Superficie: 170,27m2
Planta baja: 102,69m2
Planta primera: 67,58m2
Porche: 40,44m2
Doble altura: 24,88m2
Pérgola: 18,78m2
Terraza: 26,06m2+5,88m2
Salón-comedor-cocina: 48,71m2
Recibidor: 7,51m2
Dormitorio principal: 15,50m2
Baño dormitorio principal: 4,60m2
Vestidor: 7,10m2
Baño 2: 4,67m2
Dormitorios 2-3: 12,26m2
Dormitorio 4: 10,23m2
Baño 3: 3,32m2

Rothko en 2 modelos entre los que puedes elegir en sus versiones de 149 y 163m2 con 3 y 4 dormitorios y porche exterior.

Viviendas desde los 103m2 hasta los 305m2 con pérgola exterior con posibilidad de adosarse y parearse.

Comodidad y confort a tu servicio. Viviendas desde los 130m2 hasta los 208m2.

Picasso en 3 modelos diferentes desde los 235m2 hasta los 489m2. Salón a doble altura, 4 dormitorios y 3 baños.

Casa Cava de 278m2 con una única planta. Vivienda cómoda y práctica, perfecta para parcelas de tamaño medio.

Casas prefabricadas rústicas tradicionales y de diseño. Viviendas desde los 80m2 hasta los 120m2.

La Casa Vilalta X tiene un gran diseño, sin pasillos, distribuida en dos plantas donde se produce la funcionalidad perfecta para cualquier persona.

Descubre la Casa Dalí, una impresionante residencia de 215m2 con un elegante porche que te dará la bienvenida
Contacto
©Copyright 2024. Modulate, todos los derechos reservados.
Sitio web Desarrollado por Crear&Co