Descubre las fascinantes casas prefabricadas rústicas, tanto tradicionales como de diseño. La vivienda modular MH es la opción ideal, ya sea para una segunda residencia o como tu hogar principal, adaptándose perfectamente al estilo que prefieras, ya sea más tradicional o moderno.
Disfruta al máximo de la naturaleza desde el porche o la terraza, rodeado de tus seres queridos. Nuestras viviendas rústicas de diseño destacan por sus cubiertas inclinadas y fachadas de piedra, brindando un estilo tradicional y las calidades que siempre has anhelado. Pero eso no es todo, también tienes la opción de convertirlas en espacios más modernos, con una cubierta plana y una fachada lisa, añadiendo un toque vanguardista a tu hogar.
Recuerda que el sistema constructivo MH System cumple rigurosamente con el código técnico de la edificación (CTE), lo que te permite solicitar una hipoteca sin inconvenientes. Así podrás hacer realidad tu sueño de adquirir una casa prefabricada que combine lo mejor de la tradición y el diseño contemporáneo.
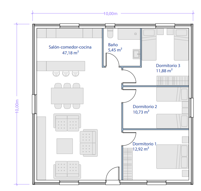
Si la Casa MH 100 se adapta a tus necesidades, puedes reservarla. Sólo tienes que elegir tu zona y los acabados que necesitas y con un sólo click, tienes la posibilidad de formar parte de la comunidad Modular Home.
Si necesitas un presupuesto personalizado, conecta con nosotros y un técnico te ayudará en todo el proceso para realizar tu proyecto.
*Los precios pueden variar dependiendo del lugar de ubicación y de la topografía del terreno y el firme existente

Rothko en 2 modelos entre los que puedes elegir en sus versiones de 149 y 163m2 con 3 y 4 dormitorios y porche exterior.

Viviendas desde los 103m2 hasta los 305m2 con pérgola exterior con posibilidad de adosarse y parearse.

Comodidad y confort a tu servicio. Viviendas desde los 130m2 hasta los 208m2.

Picasso en 3 modelos diferentes desde los 235m2 hasta los 489m2. Salón a doble altura, 4 dormitorios y 3 baños.

Casa Cava de 278m2 con una única planta. Vivienda cómoda y práctica, perfecta para parcelas de tamaño medio.

Casas prefabricadas rústicas tradicionales y de diseño. Viviendas desde los 80m2 hasta los 120m2.

La Casa Vilalta X tiene un gran diseño, sin pasillos, distribuida en dos plantas donde se produce la funcionalidad perfecta para cualquier persona.

Descubre la Casa Dalí, una impresionante residencia de 215m2 con un elegante porche que te dará la bienvenida
Contacto
©Copyright 2024. Modulate, todos los derechos reservados.
Sitio web Desarrollado por Crear&Co