Descubre el lujo a tu alcance con la casa modelo Picasso 235. Esta impresionante residencia se distribuye en dos plantas y se destaca por sus muros circundantes, que le brindan amplitud y una estética exquisita. Su salón acristalado, con una doble altura deslumbrante, te permitirá disfrutar de vistas panorámicas desde su fachada principal, creando una experiencia única en un espacio amplio y lleno de encanto.
Además de su diseño cautivador, la casa modelo Picasso 235 se adapta a tus necesidades y preferencias. Su capacidad para orientarse hacia las vistas más deslumbrantes te permitirá disfrutar de la belleza natural que te rodea. Imagina despertar cada mañana con la luz del sol inundando tu salón, mientras te deleitas con la panorámica de un paisaje impresionante.
Si la Casa Picasso 235 se adapta a tus necesidades, puedes reservarla. Sólo tienes que elegir tu zona y los acabados que necesitas y con un sólo click, tienes la posibilidad de formar parte de la comunidad Modular Home.
Si necesitas un presupuesto personalizado, conecta con nosotros y un técnico te ayudará en todo el proceso para realizar tu proyecto.
*Los precios pueden variar dependiendo del lugar de ubicación y de la topografía del terreno y el firme existente
Superficie: 217,93m2
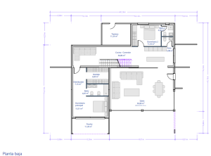
Planta baja: 155,73m2
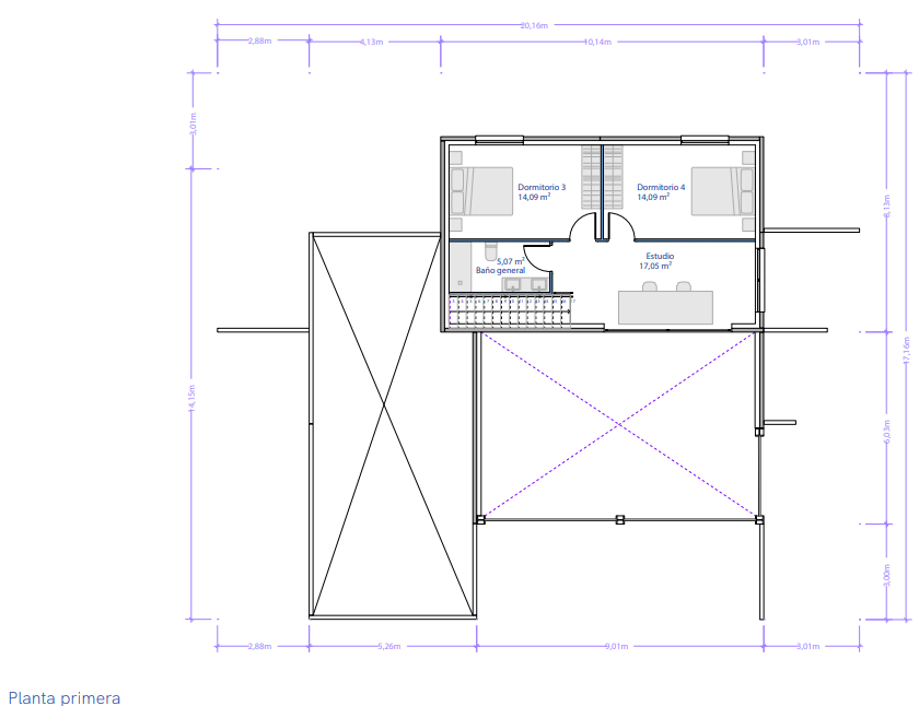
Planta primera: 62,20m2
Salón a doble altura: 50,80m2
Porche: 11,20m2
Trastero: 11,24m2
Aseo: 2,08m2
Cocina–comedor: 36,86m2
Dormitorio principal+Baño+vestidor : 31,91m2
Dormitorio 2 +baño: 14,04m2
Dormitorios 3-4: 14,09m2
Baño general: 5,07m2
Estudio: 17,05m2

Rothko en 2 modelos entre los que puedes elegir en sus versiones de 149 y 163m2 con 3 y 4 dormitorios y porche exterior.

Viviendas desde los 103m2 hasta los 305m2 con pérgola exterior con posibilidad de adosarse y parearse.

Comodidad y confort a tu servicio. Viviendas desde los 130m2 hasta los 208m2.

Picasso en 3 modelos diferentes desde los 235m2 hasta los 489m2. Salón a doble altura, 4 dormitorios y 3 baños.

Casa Cava de 278m2 con una única planta. Vivienda cómoda y práctica, perfecta para parcelas de tamaño medio.

Casas prefabricadas rústicas tradicionales y de diseño. Viviendas desde los 80m2 hasta los 120m2.

La Casa Vilalta X tiene un gran diseño, sin pasillos, distribuida en dos plantas donde se produce la funcionalidad perfecta para cualquier persona.

Descubre la Casa Dalí, una impresionante residencia de 215m2 con un elegante porche que te dará la bienvenida
Contacto
©Copyright 2024. Modulate, todos los derechos reservados.
Sitio web Desarrollado por Crear&Co