Esta maravillosa residencia se eleva en dos plantas, rodeada por muros que realzan su amplitud y su estética exquisita. Pero eso no es todo: su deslumbrante salón acristalado de doble altura y su habilidad para capturar las vistas desde su fachada principal la convierten en el lugar perfecto si buscas disfrutar de un espacio amplio y una atmósfera verdaderamente única.
Imagina vivir en un refugio de belleza y elegancia, donde cada detalle está cuidadosamente diseñado para deleitar tus sentidos. La casa modelo Picasso ha sido concebida para adaptarse a tus gustos y necesidades, permitiéndote disfrutar de vistas panorámicas y envolventes. Despierta cada día con los rayos del sol inundando tu salón, mientras te maravillas con el paisaje que se despliega ante tus ojos.
Si la Casa Picasso 489 se adapta a tus necesidades, puedes reservarla. Sólo tienes que elegir tu zona y los acabados que necesitas y con un sólo click, tienes la posibilidad de formar parte de la comunidad Modular Home.
Si necesitas un presupuesto personalizado, conecta con nosotros y un técnico te ayudará en todo el proceso para realizar tu proyecto.
*Los precios pueden variar dependiendo del lugar de ubicación y de la topografía del terreno y el firme existente
Superficie: 379,38m2
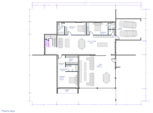
Planta baja: 247,87m2
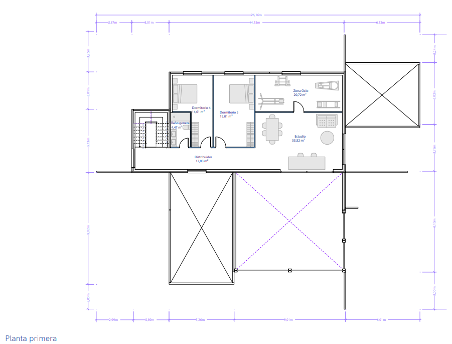
Planta primera: 131,51m2
Porche: 5,94m2
Trastero: 11,24m2
Gimnasio: 20,72m2
Salón a doble altura: 66,92m2
Garaje: 29,57m2 (ampliable)
Cocina–comedor: 77,48m2
Dormitorio principal +baño+ vestidor: 36,65m2
Dormitorio 2+baño: 19,84m2
Dormitorio 3+baño: 17,64m2
Aseo: 4,70m2
Distribuidor: 17,03m2
Dormitorio 4: 14,61m2
Dormitorio 5: 19,01m2
Baño: 4,47m2
Estudio: 33,52m2

Rothko en 2 modelos entre los que puedes elegir en sus versiones de 149 y 163m2 con 3 y 4 dormitorios y porche exterior.

Viviendas desde los 103m2 hasta los 305m2 con pérgola exterior con posibilidad de adosarse y parearse.

Comodidad y confort a tu servicio. Viviendas desde los 130m2 hasta los 208m2.

Picasso en 3 modelos diferentes desde los 235m2 hasta los 489m2. Salón a doble altura, 4 dormitorios y 3 baños.

Casa Cava de 278m2 con una única planta. Vivienda cómoda y práctica, perfecta para parcelas de tamaño medio.

Casas prefabricadas rústicas tradicionales y de diseño. Viviendas desde los 80m2 hasta los 120m2.

La Casa Vilalta X tiene un gran diseño, sin pasillos, distribuida en dos plantas donde se produce la funcionalidad perfecta para cualquier persona.

Descubre la Casa Dalí, una impresionante residencia de 215m2 con un elegante porche que te dará la bienvenida
Contacto
©Copyright 2024. Modulate, todos los derechos reservados.
Sitio web Desarrollado por Crear&Co