Una fusión perfecta entre utilidad y vanguardia. La vivienda Rothko 215, modelo de casa, encarna la funcionalidad y el diseño más innovador. En su planta baja, se crea un ambiente amplio y diáfano que invita a vivir el día a día en conexión con el entorno, gracias a un porche que se extiende poderosamente en voladizo. La planta superior se organiza alrededor de una magnífica habitación con vestidor y baño exclusivos, que se abren hacia el exterior mediante una terraza privada. Esta casa es un ejemplo sublime de cómo combinar la practicidad y la estética vanguardista.
*Los precios pueden variar dependiendo del lugar de ubicación y de la topografía del terreno y el firme existente
Superficie: 162,96m2
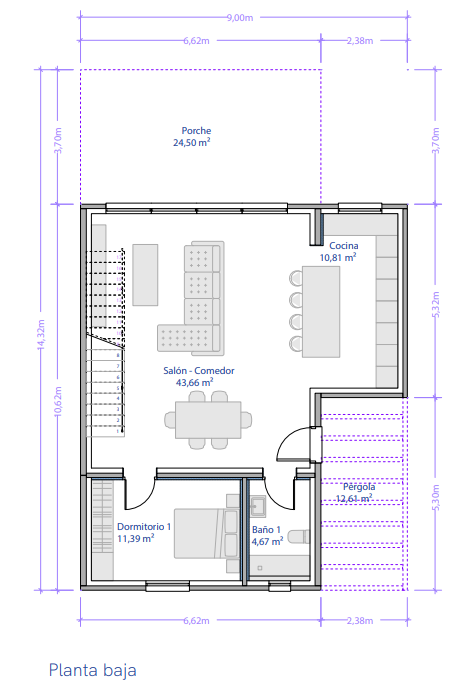
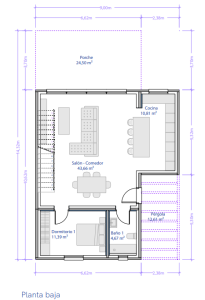
Planta baja: 82,96m2
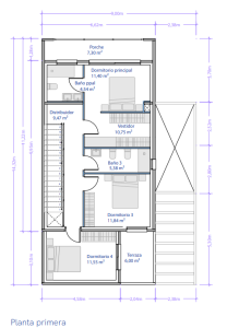
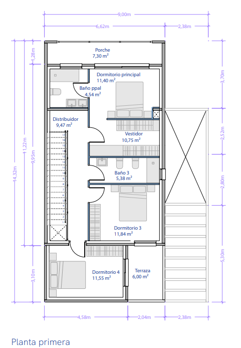
Planta primera: 80m2
Porche: 24,50m2+7,30m2
Pérgola: 12,61m2
Salón-comedor: 43,66m2
Cocina: 10,81m2
Dormitorio 1: 11,39m2
Baño 1: 4,67m2
Distribuidor: 9,47m2
Dormitorio ppal: 11,40m2
Vestidor: 10,75m2
Baño dormitorio ppal:4,54m2
Dormitorio 3: 11,84m2
Baño 3: 5,38m2
Dormitorio 4: 11,55m2
Terraza dormitorio 4: 6m2

Rothko en 2 modelos entre los que puedes elegir en sus versiones de 149 y 163m2 con 3 y 4 dormitorios y porche exterior.

Viviendas desde los 103m2 hasta los 305m2 con pérgola exterior con posibilidad de adosarse y parearse.

Comodidad y confort a tu servicio. Viviendas desde los 130m2 hasta los 208m2.

Picasso en 3 modelos diferentes desde los 235m2 hasta los 489m2. Salón a doble altura, 4 dormitorios y 3 baños.

Casa Cava de 278m2 con una única planta. Vivienda cómoda y práctica, perfecta para parcelas de tamaño medio.

Casas prefabricadas rústicas tradicionales y de diseño. Viviendas desde los 80m2 hasta los 120m2.

La Casa Vilalta X tiene un gran diseño, sin pasillos, distribuida en dos plantas donde se produce la funcionalidad perfecta para cualquier persona.

Descubre la Casa Dalí, una impresionante residencia de 215m2 con un elegante porche que te dará la bienvenida
Contacto
©Copyright 2024. Modulate, todos los derechos reservados.
Sitio web Desarrollado por Crear&Co